Projetos

Desenvolvimento de projetos arquitetônicos e interiores, de diversas tipologias, buscando as melhores soluções.

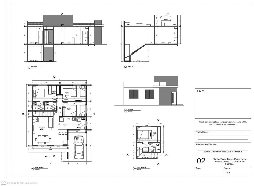
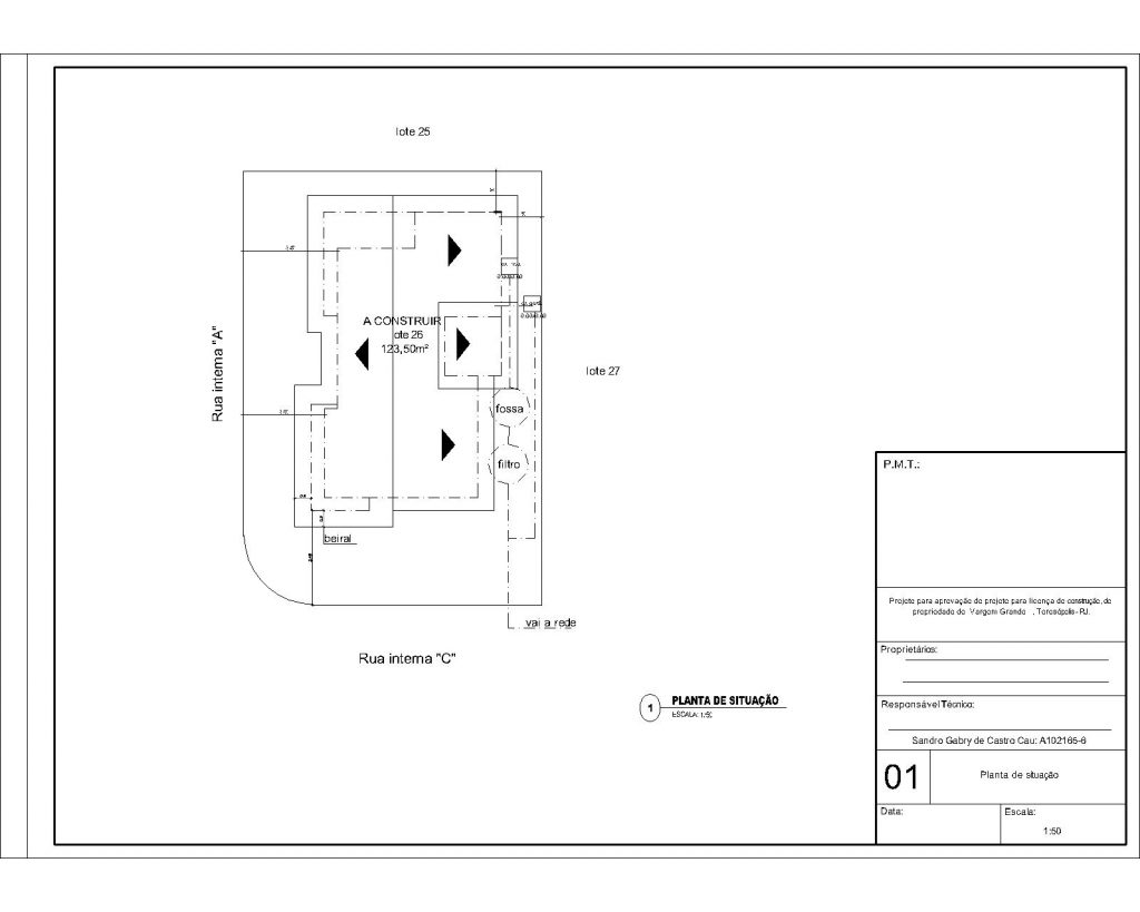
Desenhos para aprovação de licença de construção. Plantas de esgotamento, situação, da residência, cortes, fachada e telhado.

Estudo final de projeto para licença de construção residencial duplex, estilo moderno, fachada e maquete esquemática, para entendimento do cliente. Área gourmet, piscina com prainha, churrasqueira, com balcão e sauna.

Casa com sala em 3 ambientes com lareira, integrada a cozinha com ilha , e quarto , no térreo. Piso superior, 3 suítes, sala de cinema, com única varanda em toda fachada, hall com iluminação zenital por clarabóia.

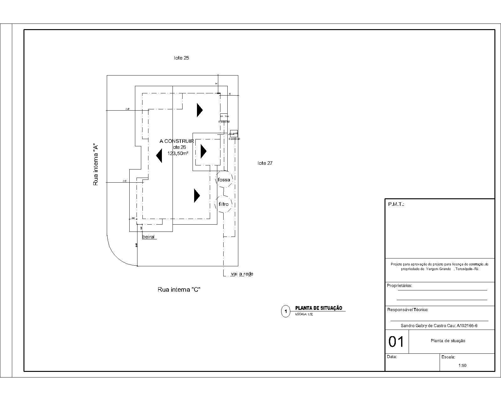
Residência HP. Legalização para licença de construção, incluindo esgotamento sanitário. Intermediação com parceiros para terraplenagem e topografia, para o projeto.

Novo deck e layout para sala/varanda.

Projeto de esgotamento sanitário e responsabilidade de execução

Layout de pontos elétricos e hidrossanitários e projeto de praça com área de manobra na residência.

ANTES E DEPOIS! Reforma de garagem , para criação de 3 quartos, banheiro, depósito e área de serviço. Projeto com layout dos ambientes, pontos elétricos (tomadas, interruptores, arandelas), fachada e vista de um quarto.

Residência AB, composta de quatro quartos,  sala/cozinha integradas, terreno em declive, distrito de Teresópolis, na Teresópolis – Friburgo, a ser construída pela Caixa Econômica, com finalidade de venda.

Residência com rampa de acesso a garagem, sob sala envidraçada com linda vista, piscina aproveitando a melhor orientação solar, com cozinha e área gourmet integrados. Suítes no terceiro platô.

O projeto é composto de piscina com cascata em pedra, jardim, garagem, banheiro sob a escada, e espaço gourmet.

  1. proj carlos Xerem R24-Model
  2. proj carlos Xerem R21-Model
  3. proj carlos Xerem B. R24-Model

Projeto albuquerque. Nesse projeto foi pedido unidades de dois pavimentos com a menor área útil possível, isto é, dois quartos, um banheiro, sala, cozinha e área de serviço. Achei interessante criar um lavabo sob a escada para maior conforto dos usuários.Criei também um estacionamento na parte anterior do terreno, que por ser em aclive, haveria de ser feito um corte no mesmo e muro de contenção. A escada de acesso à cota mais alta onde se encontra a residência, fica adjacente ao estacionamento na lateral do terreno. O telhado possui duas águas, sobrepostas, com caimento para frente do lote. A porta de acesso à sala de estar se dá por uma porta de correr em 45 graus e a escada interna para o segundo pavimento é em forma de L.

Projeto arquitetônico e esgotamento sanitário de residência. O trabalho incluiu elaboração do projeto, respeitando todas as normas exigidas pela legislação para a zona da cidade onde se encontrava o terreno, de acordo com a respectiva lei de zoneamento, quadro de áreas com taxa de ocupação dentro também do previsto para aprovação, cálculo do volume de fossa, filtro e sumidouro para a Secretária de Meio Ambiente e o frequente acompanhamento na prefeitura.

Projeto e consultoria de living e deck em casa de condomínio no Quebra Frascos, Teresópolis. O trabalho abrangeu a consultoria de interiores como cores para cômodos, material para revestimento de lareira, pisos,etc, layout dos móveis com medidas para o living/varanda gourmet e deck, planta e corte do deck com a estrutura, levantamento métrico de todo o espaço.

PROJETO COMPLETO EM PDF

Projeto de área de lazer com espaço gourmet e sauna – o trabalho incluiu medição da área a ser projetada e dos equipamentos como forno, churrasqueira que iriam ser inseridos no espaço, diálogo com os clientes para saber seus desejos e expectativas, programa de necessidades para definir quais ambientes incluiriam o espaço, estudo do entorno para com o melhor posicionamento tirar partido da bela vista e elaboração do projeto com alterações quando necessário pela vontade do cliente e minhas sugestões.